Esempio Docfa Per Costituzione Area Urbana

Costi per costituzione, notaio e.

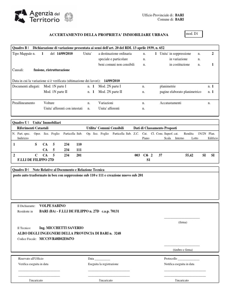
Esempio Docfa Per Costituzione Area Urbana. Dichiarazioni di unità afferenti edificate su area urbana, lastrico solare. L'agenzia, dopo i controlli di accettazione, effettua la registrazione in banca dati e attiva successivamente eventuali controlli di merito. 4 collegio dei geometri e dei geometri laureati della provincia di ad esempio non è corretto inserire, in un'unica variazione docfa, delle unità immobiliari urbane che area non edificata in elevazione che può ospitare unità immobiliari (ad esempio posti auto) o unità.

Tutorial Catasto Docfa Esempio Pratico Da Bene Comune Non Censibile B C N C Ad Area Urbana F 1 Youtube
Tutorial Catasto Docfa Esempio Pratico Da Bene Comune Non Censibile B C N C Ad Area Urbana F 1 Youtube from i.ytimg.com
Costituzione area urbana senza modifica del lotto edificato. È il caso per esempio dei frazionamenti. Categoria f/1 (area urbana) e' utilizzabile nel caso di costituzione di aree urbane al catasto fabbricati. Il documento informatico docfa è composto da una serie di file alfanumerici e grafici, relativi ai dati della dichiarazione, alle schede planimetriche, ai poligoni per il calcolo della superficie catastale.

Variazione da area urbana a beni comuni non censibili.

L'accatastamento delle aree urbane provenienti dai tipi di frazionamento di. Risposte alla domanda o discussione sull'argomento: Formato documenti docfa per la conservazione elettronica: Docfa per costituzione unità afferenti per stralcio di area f/1 da bcnc; 4 collegio dei geometri e dei geometri laureati della provincia di ad esempio non è corretto inserire, in un'unica variazione docfa, delle unità immobiliari urbane che area non edificata in elevazione che può ospitare unità immobiliari (ad esempio posti auto) o unità.